公司名稱:浙江日發紡織機械有限公司
【適用范圍】
該機型適應各類網格織物(平織及絞織)的織造。對織機的開口、供緯、送經、卷取、布邊、剪刀等裝置進行特殊設計,可滿足玻璃纖維等各類網絡布要求,廣泛應用于土木工程、水利建筑、建材、化工等領域。
【產品特點】
1、 該機結構緊湊,操作方便,更換織物調整容易;自動化程度高,適合玻璃纖維等各類網絡布織造要求。
2、 采用微電腦控制系統,具有自動尋緯、故障檢測、自動選緯、斷經自動停車、斷緯自動停車、液晶顯示等功能。
3、 開口機構采用積極式下置多臂機。根據設計的織物組織,由預先編制的紋板、紋紙或程序控制綜框的升降運動。
4、 引緯機構是雙劍單側供緯,由共軛凸輪驅動的撓性劍帶和夾持式鉗緯器在中央交接緯紗完成引緯。特殊設計的供緯系統,優化設計精密加工的共軛凸輪控制整個引緯過程,可使劍桿頭運動規律更趨合理,確保織機高速運轉時緯紗張力穩定、交接可靠、運行平穩。
5、 打緯機構由共軛凸輪驅動短筘座腳分離式筘座,利用慣性打緯,以減小運動的沖擊和能量消耗。與引緯共軛凸輪具有同樣高精度的打緯共軛凸輪,驅動堅固的短筘座,確保在織造高密織物以及厚重織物時的打緯力。
6、 機外送經機構,積極式送經機構采用復式調節系統,保證送經均勻與送經張力穩定。
7、 卷取機構由蝸輪、蝸桿及鏈輪積極連續地傳動卷取輥,實現連續卷取。
8、 機械選緯。
9、 由4kw的主電動機通過電磁制動離合器傳動織機各個機構。電磁制動離合器同電控系統配合,可準確控制織機的啟動、定位停車、點動等功能。
10、 主要傳動輪系采用油浴潤滑,擺軸軸承采用定期強迫潤滑,無油浴部位采用密封軸承。
【技術參數】
項目 規格 選配件
筘幅 公稱筘幅:210、230、280
車速 210筘幅約300~400rpm
230筘幅約270~360rpm
280筘幅約232~320rpm
功率 整機耗電量<4.6kw
緯密范圍 緯密范圍1-30根/CM
最大卷布直徑 550cm或機外卷取
選緯 機械選緯
送經 機外送經,積極連續式送經
卷取 積極連續式卷取
停經裝置 電氣觸點式
自動尋緯功能 自動尋緯及防緯檔
開口形式 多臂開口或共軛凸輪踏盤開口
電氣控制系統 單片機微電腦控制系統
打緯機構 共軛凸輪式
引緯機構 雙劍單側引緯,中央交接,共軛凸輪驅動
緯停裝置 壓電陶瓷式緯紗檢測器
絞邊形式 紗羅絞邊 選配
綜框 平織綜框或絞織綜框
潤滑系統 主要傳動采用油浴式,部分機構采用定期強迫注油
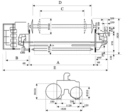
【外形尺寸簡圖】
.jpg)
[1][2]下一頁>>