式中:a2——伺服電機減速加速度(r/ms2);
t——減速降速時間(ms)。
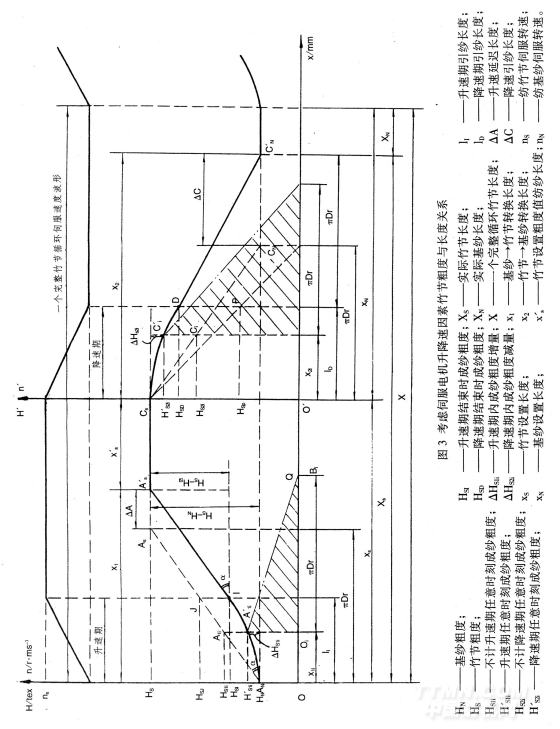
用相同方法可得出竹節一基紗伺服電機降速過程中,任意時刻成紗粗度Hs2i′的計算公式為:
.png)
.png)
由公式(20)、(21)可知,在整個伺服降速期內竹節粗度呈兩次函數遞減變化。從D點起伺服電機降速完成進入紡基紗低速給棉。正如以上成紗原理分析所述,由于此時轉杯凝聚槽內還殘留著降速期結束時的HsD高量纖維層,要實現基紗粗度紡紗,必須待它們完全被剝離,即再經過一個轉杯周長的引紗才能徹底完成這種切換。所以,實際竹節一基紗轉換結束點延遲到C′N,而非不計伺服降速過程時的CN點。這兩點間的引紗長度即為伺服降速延遲長度AC,其值為:
![]()
所以,竹節→基紗的實際轉換長度x2為:
![]()
由圖3關系還可得出竹節長度、基紗長度和一只竹節循環長度之計算公式:
.png)
公式(25)、(26)、(27)表明,實際竹節長度是竹節設置長度、轉杯周長和伺服降速延遲長度之和;(緊接著的下一只)基紗長度為該基紗設置長度與轉杯周長和上一只竹節伺服降速延遲長度之差;一只完整的竹節循環長度是竹節長度和(緊接著的)基紗長度之和。由上述分析可知,伺服電機的升速過程不影響竹節的總長度,但它縮短了竹節粗度值紡紗長度(當xs>x1)時,并使得基紗→竹節轉換初期的竹節粗度增加變得更為平緩。伺服電機的降速過程會增加竹節的總長度和縮短下一只基紗紡紗長度,并使得竹節一基紗轉換初期竹節粗度下降趨緩,這在一定程度上補償了因伺服升速延遲使竹節粗度值紡紗長度的縮短。
以上是伺服電機在等加減升降速情況下的結論。在實際工作中,伺服電機的升降速過程并非全程恒等加減速變化,為了減少伺服過沖,在加速過程的末端速度變化有所趨緩,使竹節變化更為平緩,但不影響上述推論。
.png)
表2是根據以上推導公式,對紡58.3tex(10s)4倍竹節紗,引紗速度64.7m/min,伺服升速時間40ms,降速時間50ms時,計算得出的伺服升降速結束時成紗粗度與不考慮伺服升降速因素成紗粗度的對比結果。由表2可見,因伺服升降速因素的存在,基紗與竹節轉換初期成紗粗度變化更為平緩,其基紗與竹節轉換長度都有所延長。
.png)
表3為上述紡紗品種與條件下,基紗設置長度840mm,竹節設置長度210mm一只竹節循環竹節紗,用烏斯特曲線圖測量法(見圖4)所測得的實際基紗長度XNi和循環長度Xi值。
.png)
.png)
由實測結果計算的竹節平均長度為:
而由公式(25)計算的竹節理論長度Xs為:
Xs=xs+πDr+1D=210+π×66+53.9=471.
2(mm)
由此可見,實際竹節長度與理論推導極為接近,其絕對誤差為2.3mm,相對誤差O.5%,說明上述推論是正確的。
3竹節參數設置與竹節長度、粗度和形態的關系
上述有關竹節長度、基紗長度計算公式可作為竹節參數設置的依據,但是它們之問的不同組合將會產生不同粗度和形態的竹節,以下分三種情況予以討論。為討論方便,不考慮伺服升降速過程,并假定竹節設置粗度不變。
3.1竹節設置長度大于等于轉杯周長(xs≥πDr),基紗設置長度大于等于轉杯周長(XN≥πDz)
.png)
這是一種最為常見的設置方案,從圖5關系中不難得出實際竹節長度和基紗長度值為:
<<上一頁[1][2][3][4]下一頁>>
相關信息 







推薦企業
推薦企業
推薦企業